- Woonoppervlakte
- Circa 76 m²
- Inhoud
- Circa 250 m³
- Bouwjaar
- Gebouwd in 1999
- Aantal kamers
- 3 kamers (2 slaapkamers)
MODERD EN ENERGIEZUINIG 3-KAMERAPPARTEMENT nabij centrum én uitvalswegen
Dit ruime driekamerappartement (ENERGIELABEL A) bevindt zich op de eerste verdieping van een
kleinschalig appartementencomplex. De woning beschikt over een royale woonkamer met open
keuken, twee volwaardige slaapkamers, een complete badkamer en een balkon op het westen.
Daarnaast zijn er zowel een inpandige berging als een grote berging op de begane grond aanwezig.
(!) Het complex beschikt over een liftinstallatie en is daardoor goed geschikt voor senioren en mindermobiele bewoners.
Het appartement ligt op loopafstand van de historische binnenstad van Gouda met diverse winkels,
horeca en voorzieningen. Het NS-station is snel per fiets bereikbaar. Tevens bevindt de woning zich
gunstig ten opzichte van de uitvalswegen richting Rotterdam, Utrecht en Den Haag (A12 en N207).
Scholen, sportaccommodaties en zorgfaciliteiten bevinden zich eveneens in de directe omgeving.
ENERGIELABEL A.
Bouwjaar: 1999. Woonoppervlakte: ca. 76 m². Inhoud: ca. 250 m³.
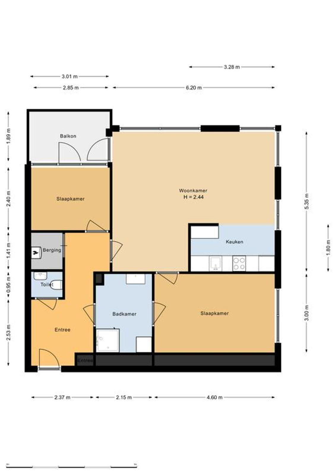
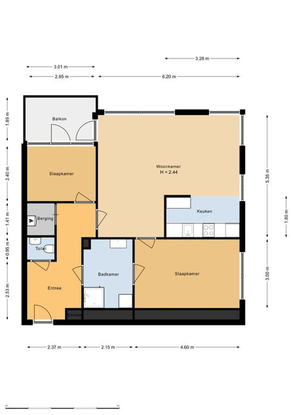
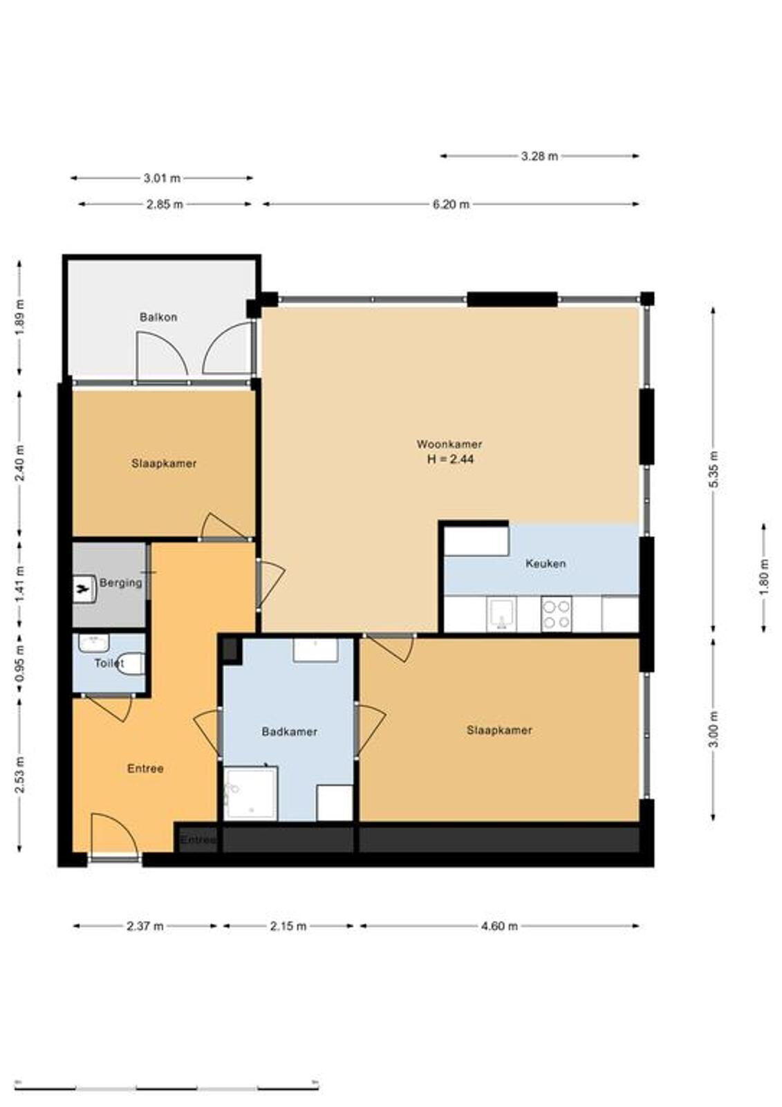
Indeling:
Begane grond:
Centrale entree met liftinstallatie en trappenhuis. Via deze verdieping is de berging bereikbaar. De
intercominstallatie biedt extra privacy en veiligheid.
Eerste verdieping:
Ruime hal met toegang tot het toilet (v.v. wandcloset en fonteintje), een grote inpandige berging met
CV-opstelling (2017), de woonkamer, één van de slaapkamers en de badkamer.
De woonkamer ligt aan de achterzijde van het gebouw en biedt toegang tot de open keuken, welke is
voorzien van een keramische kookplaat met oven en vaatwasser.
De grootste slaapkamer grenst aan de woonkamer en heeft tevens directe toegang tot de badkamer.
Deze slaapkamer biedt voldoende ruimte voor een tweepersoonsbed en een grote kast. De tweede
slaapkamer is bereikbaar via de hal.
De badkamer is ruim uitgevoerd met een inloopdouche, wastafelmeubel en aansluitingen voor de
wasmachine. De badkamer is zowel vanuit de hal als vanuit de slaapkamer toegankelijk.
Het balkon is bereikbaar via de woonkamer en de tweede slaapkamer. Dankzij de diepte van bijna 2
meter is er voldoende plek voor een zit- of eethoek. De ligging op het westen maakt het balkon ideaal
voor de middag- en avondzon.
Een nette laminaatvloer is door vrijwel de gehele woning gelegd (m.u.v. sanitaire ruimten en berging).
Bijzonderheden:
- Energielabel A;
- Gelegen op eigen grond;
- Balkon op het westen;
- Volledig geïsoleerd;
- Verwarming middels eigen combiketel;
- Inpandige én externe berging;
- Kleinschalig complex met lift;
- Maandelijkse VvE-bijdrage: € 261,11;
- Loopafstand tot de binnenstad;
- Gunstige ligging t.o.v. A12, N207 en openbaar vervoer;
- Oplevering: spoedig mogelijk.
Disclaimer:
Deze woning is ingemeten volgens de NEN2580 en voorzien van een meetcertificaat. De
meetinstructie biedt een uniforme manier van meten, maar sluit kleine verschillen in
meetuitkomsten niet uit. Alle informatie is bedoeld als uitnodiging tot het doen van een bod of het
starten van onderhandelingen. Aan deze woninginformatie kunnen geen rechten worden ontleend.
Overdracht
- Vraagprijs
- € 325.000 k.k.
- Status
- Verkocht
- Aanvaarding
- In overleg
- Bijdrage VvE
- € 261.11 p/m
Bouw
- Object type
- Tussenverdieping, appartement
- Soort bouw
- Bestaande bouw
- Bouwjaar
- 1999
- Soort dak
- Plat dak bedekt met bitumineuze dakbedekking
Oppervlakte en inhoud
- Woonoppervlakte
- 76 m²
- Inhoud
- 250 m³
Indeling
- Aantal kamers
- 3 kamers (2 slaapkamers)
- Aantal badkamers
- 1 badkamer
- Badkamervoorzieningen
- Douche, wastafelmeubel, wasmachineaansluiting
- Aantal woonlagen
- 1 woonlaag
- Voorzieningen
- Mechanische ventilatie, rolluiken, tv-kabel, lift
Energie
- Energielabel
- A
- Energielabel registratie
- 16-02-2022
- Isolatie
- Dakisolatie, muurisolatie, dubbel glas
- Verwarming
- Cv-ketel
- Warm water
- Cv-ketel
- Cv ketel
- Combiketel gas gestookt uit 2017 (eigendom)
Buitenruimte
- Ligging
- In woonwijk
- Balkon / dakterras
- Balkon
- Tuin
- Zonneterras
- ligging tuin
- Gelegen op het noorden
Bergruimte
- Schuur / berging
- Inpandig
Garage
- Soort garage
- Geen garage
Parkeergelegenheid
- Soort parkeergelegenheid
- Openbaar parkeren, parkeervergunningen
VvE checklist
- Inschrijving KvK
- Ja
- Jaarlijkse vergadering
- Ja
- Periodieke bijdrage
- Ja, € 261.11 p/m
- Reservefonds aanwezig
- Ja
- Onderhoudsplan
- Ja
- Opstalverzekering
- Ja
Energieverbruik in Gouda
Energielabel deze woning
Energielabel A
Publicatie energielabel: 16-02-2022
Stroomverbruik per jaar
(Gemiddelde appartement in Gouda)
Gasverbruik per jaar
(Gemiddelde appartement in Gouda)
* Cijfers zijn afkomstig van het CBS en bedoeld als indicatie en kunnen verschillen voor deze woning
Indicatie hypotheeklasten
Eigen inleg:
Spaargeld / overwaarde
Rente:
Laagste 10-jaars rente
Laagste 10-jaars rente
2,85% - Centraal Beheer Groen... - NHG
3,08% - Centraal Beheer Groen... - 80%
Laagste 20-jaars rente
3,29% - Centraal Beheer Groen... - NHG
3,52% - Centraal Beheer Groen... - 80%
Laagste 30-jaars rente
3,41% - Centraal Beheer Groen... - NHG
3,74% - Centraal Beheer Groen... - 80%
Hypotheek:
Bruto maandlasten: € 0 p/m
Netto maandlasten: € 0 p/m
Hoe berekenen we dit?
Het rentepercentage is gebaseerd op de laagste 10 jaars vaste rente voor één hypotheekdeel. De vermelde rente (2.85% met NHG) is gecontroleerd op 05-02-2026. Deze berekening is gebaseerd op een annuïteitenhypotheek die volledig wordt afgelost, waarbij de maandlasten gedurende de gehele looptijd gelijk blijven. De werkelijke rente en netto maandlasten kunnen variëren, afhankelijk van uw persoonlijke situatie en de hypotheekverstrekker. Raadpleeg een financieel adviseur voor een nauwkeurige berekening en advies. Aan deze berekening kunnen geen rechten worden ontleend; het dient enkel als indicatie.
Documentatie
Kadastrale kaart
Leefomgeving
Plattegronden PDF
WOZ waarderapport
BAG uittreksel
Brochure
Bezoek onze website
Bezichtiging
Bod uitbrengen
Waardebepaling
Zoekopdracht
Alles downloaden
Zonnegrenzen bekijken
Op de kaart
Inwoners in Gouda
Cijfers voor postcodegebied 2802
- Totaal aantal inwoners
- 9710 inwoners
- Mannen
- 50%
- Vrouwen
- 50%
Inwoners in Gouda
Cijfers voor postcodegebied 2802
- tot 15 jaar
- 18%
- 15 tot 25 jaar
- 12%
- 25 tot 35 jaar
- 29%
- 45 tot 65 jaar
- 26%
- 65 en ouder
- 15%
Huishoudens in Gouda
Cijfers voor postcodegebied 2802
- Eenpersoons zonder kinderen
- 40%
- Meerpersoons zonder kinderen
- 26%
- Huishoudens zonder kinderen
- 66%
Huishoudens in Gouda
Cijfers voor postcodegebied 2802
- Huishoudens met één kind
- 9%
- Huishoudens met meerdere kinderen
- 25%
- Huishoudens met kinderen
- 34%
Woningen in Gouda
Cijfers voor postcodegebied 2802
- Woningen voor 1945
- 43%
- Woningen tussen 1945 en 1965
- 25%
- Woningen tussen 1965 en 1975
- 2%
- Woningen tussen 1975 en 1985
- 9%
- Woningen tussen 1985 en 1995
- 6%
Woningen in Gouda
Cijfers voor postcodegebied 2802
- Woningen tussen 1995 en 2005
- 6%
- Woningen tussen 2005 en 2015
- 8%
- Woningen na 2015
- 1%
- Huurwoningen
- 50%
- Koopwoningen
- 50%
Overige in Gouda
Cijfers voor postcodegebied 2802
- Gemiddelde WOZ waarde
- € 177.000,-
- Personen onder de 65 met uitkering
- 10%
Overige in Gouda
Cijfers voor postcodegebied 2802
- Adressen per km²
- 2378
- Stedelijkheid (schaal 1 op 5)
- 80%
Korte feiten over Gouda
Gouda is een stad en gemeente in het oosten van de provincie Zuid-Holland in Nederland met 75.763 inwoners (1 januari 2024, bron: CBS) op een grondgebied van 16,92 km². De stad is gelegen in Midden-Holland en in het stedelijk gebied de Randstad, op ruwweg gelijke afstand van Rotterdam, Utrecht en Den Haag. Gouda heeft een regiofunctie binnen het Groene Hart, waar het qua inwoners de grootste stad en de op een na grootste gemeente is (na Alphen aan den Rijn). Het is naar inwonertal gemeten de 48e gemeente van Nederland en de 12e gemeente van Zuid-Holland.
Van Rhijn Makelaars
Indien u vragen heeft of u wilt een bezichtiging inplannen, dan kunt u gebruik maken van het formulier hiernaast. Er zal daarna op korte termijn contact met u worden opgenomen.
van Limburg Stirumstraat 2
2805 BD, Gouda
0182 – 748 739 info@vanrhijnmakelaars.nl www.vanrhijnmakelaars.nlContact opnemen
Over Van Rhijn Makelaars
Van Rhijn Makelaars, voorheen bekend als Uw Verkoopmakelaars en UwAankoopmakelaars.nl, is uw partner bij het zoeken naar een nieuwe woning of het verkopen van uw huidige woning. Bent u toe aan een grotere woning of wilt u gewoon in een andere omgeving wonen? Dan bent u bij ons aan het juiste adres.
Bij Van Rhijn Makelaars kunt u terecht voor de aankoop, verkoop en verhuur van uw woning in Reeuwijk, Gouda, Bodegraven, Boskoop, Haastrecht, Waddinxveen, Moordrecht en Woerden. Wij bieden alle diensten die u van een makelaar verwacht, maar dan tegen een vast tarief dat vooraf is bepaald. Dit geldt voor zowel de verkoop als de aankoop van uw woning.
Wij zetten moderne tools in, maken duidelijke afspraken en zijn transparant in onze werkwijze. Zo kunt u met een gerust hart uw zoektocht naar een nieuwe woning starten of uw huidige woning verkopen.
Nieuwste reviews
-
Zoutmansweg 20 h
Ik ben zeer goed geholpen en geadviseerd door Justin. Verkoop is zeer soepel verlopen. Ik ben heel erg blij met deze makelaar! Echt een aanr...
-
Zoutmansweg 20 h
Ik ben zeer goed geholpen en geadviseerd door Justin. Verkoop is zeer soepel verlopen. Ik ben heel erg blij met deze makelaar! Echt een aanr...
-
Loevestein 22
De makelaars van van Rijn hebben ons zeer goed geholpen. Er was sprake van een fijne communicatie onderling. Zij hebben gericht gezocht naar...